
View exclusive MLS listing details, including sold listings.

Jump on board for access to MLS Listings and sales, special offers and exclusive opportunities
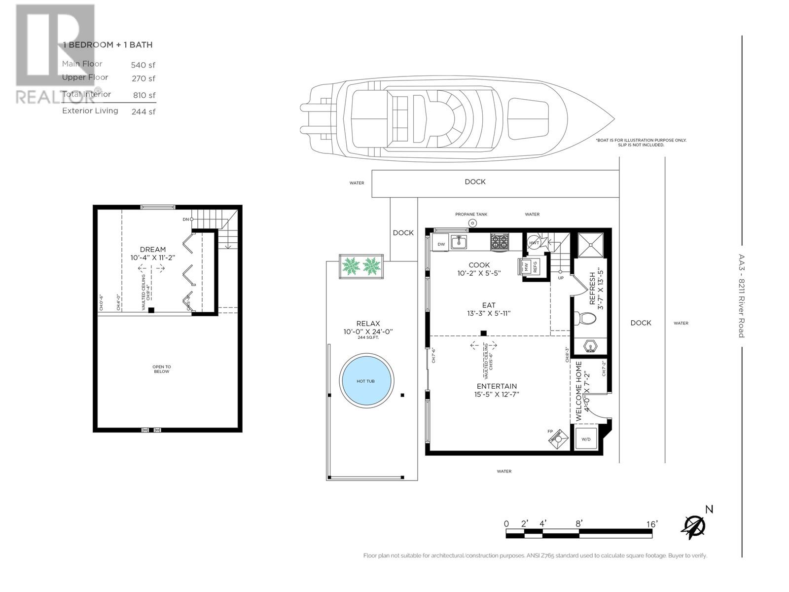
If you are looking for a peaceful life on the river, this one is for you! 810sf, 2-level loft style floating home, 244sf of private deck with hot tub, 15’6″ vaulted ceilings, concrete/styrofoam float, renovated in 2024 & located in one of the best (if not the best) Vancouver Marina. Steps to Capstan Skytrain station, minutes to the Airport, close to all amenities you will ever need + a daily dose of serenity. New roof, windows, siding, kitchen, flooring, hot water tank. Well managed & maintained marina with only 4 floating homes. Moorage Fee: $1,042/mo, low Property Taxes, no entry fee. This one is special! Yes you can get mortgage on these homes, ask for details. This one will charm your heart, come and see what living your best life looks like. NO PTT, NO Foreign buyer tax, NO Vacancy Tax. (id:59197)
General Info:
| Property Type: | |
| Dwelling Type: | |
| No. Floor Levels: | 1 |
Additional Info
View map options
| Mortgage Amount: | |
| Number of Payments: | |
| Payment Amount: | |
| Total Paid: | |
| Total Interest Paid: |
We will help you relax, enjoy, and experience the area to its full potential.
Let's Connect
Whatever your real estate ambitions are, our deep connections with our local community, residents,
and real estate market are always available to those who value service at the highest level.
Get in touch with me today to tell us about your real estate dreams.




